Biên Hòa New City hiện nay đã bán đến giai đoạn 2, giai đoạn 1 hiện đã xong hạ tầng, đã bàn giao nền và đang trong giai đoạn ra sổ. Giai đoạn 2 mở bán hơn 300 nền, hiện chỉ còn khoảng hơn 100 nền, giá giai đoạn 2 cũng tương đương giai đoạn 1, có nhiều nền biệt thự diện tích lớn hơn GĐ1 (Diện tích giai đoạn 2 là: 100 – 150 – 180 -240 -> 1.400m2). Vui lòng gọi trược tiếp hotline phòng kinh doanh: 0938169445 để được cung cấp giỏ hàng Chủ Đầu Tư.
ĐẤT NỀN BIÊN HÒA NEW CITY NẰM TRONG KHUÔN VIÊN SÂN GOLF LONG THÀNH
ĐÃ CÓ SỔ ĐỎ 100%
NGÂN HÀNG HỖ TRỢ VAY 70%
GIÁ TỪ 1,8 TỶ/NỀN 100M2
XÂY DỰNG TỰ DO
SANG TÊN CÔNG CHỨNG TRONG NGÀY
HOTLINE CHỦ ĐẦU TƯ

BIÊN HÒA NEW CITY CÓ GIÁ BÁN THẾ NÀO
![]()
BẢNG GIÁ BIỆT THỰ BIÊN HÒA NEW CITY

HOTLINE
BẢNG GIÁ KHU NHÀ PHỐ BIÊN HÒA NEW CITY
Giai đoạn 1 đất nền Biên Hòa New City hiện đã có sổ đỏ từng nền, giá bán hiện nay như sau:
- Khu Phú Gia giá từ 17-25 triệu/m2
- Khu Vĩnh Quý giá từ 16,5-24 triệu/m2
- Khu Khanh Thịnh giá từ 16,5-24 triệu/m2
- Khu Hưng Vượng giá từ 15,5-22 triệu/m2
- Khu Mỹ An giá từ 15-18 triệu/m2
Khách hàng vui lòng gọi vào Hotline: 0938169445 đề được tư vấn chính xác nhất! Hỗ trợ sang tên công chứng trong ngày!
BẢNG GIÁ SANG NHƯỢNG BIÊN HÒA NEW CITY T7/2021
PG2-7-8 108m2 – Đông nam đường 13m giá 2,4 tỷ
PG3-6-16 108m2 – Đông Nam đường 13m Giá 2,35 tỷ
Tất cả bao phí thuế + Hoa Hồng 30tr
Chỉ tiền mặt – k chấp nhận vay
Khách cần bán:
KT3-3 đường 13m, giá bán 2ty1
MA2-2 đường 18m giá bán 2tỷ1
VQ1-8-37 đường 15m giá bán 2tỷ050
HV2-9 view công viên giá bán 2ty030
MA1-3-23 (90m2) bán giá 1ty850
HV2-9-14 view công viên giá 2tỷ1
HV3-9-5 (288m2) view sông giá 22tr/m2 bao thuế và hh 1%
HV3-9-6 ( BT Góc view sông) giá 24tr/m2 bao thuế và hh 1%
Biệt Thự Khang Thịnh 240m2 giá 18tr/m2
……………..
Xem thêm: Giỏ hàng bảng giá chuyển nhượng Biên Hòa New City mới nhất
TỔNG QUAN VÀ QUY MÔ CỦA DỰ ÁN
![]()
| Chủ đầu tư | Công ty CP Đầu tư và Kinh doanh Golf Long Thành |
| Phát triển dự án | Công ty CP ĐT KD địa ốc Hưng Thịnh (Hưng Thịnh Corp) |
| Vị trí dự án | Phước Tân, Tam Phước, TP. Biên Hòa, Tỉnh Đồng Nai |
| Tên thương mại | BIÊN HÒA NEW CITY |
| Đơn vị xây dựng | Công ty Cổ phần Hưng Thịnh Incons (thành viên Hưng Thịnh Corp) |
| Độc quyền phân phối | PropertyX (thành viên Hưng Thịnh Land) |
| Tổng diện tích | 118,95 ha |
| Số khu | Với mong muốn mang đến cho cư dân một cuộc sống “an khang thịnh vượng”. Khu đô thị được phân thành 5 TIỂU KHU: Phú Gia, Vĩnh Quý, Mỹ An, Khang Thịnh, Hưng Vượng |
| Loại hình | Khu đô thị, biệt thự, nhà phố liền kề Biệt thự: 372 lô (diện tích 232,7 m2 -880 m2) Nhà liên kế: 3.253 lô (diện tích 90 m2 -324 m2) |
| Tiện ích | Sân Golf Long Thành, bến du thuyền, nhà hàng, khách sạn 5 sao, khu du lịch sinh thái, dịch vụ y tế, trung tâm thương mại, trường học quốc tế, hồ bơi ngắm nhìn sân golf … |
| Thời điểm khởi công | Quý 3/2018 |
| Thời điểm bàn giao | Quý 4/2019 |
| Bàn giao | Hoàn thiện hạ tầng |
| Pháp lý | Sổ Đỏ (Người Việt Nam – Lâu Dài) |
| Phòng kinh doanh | 0938 169 445 |

BIÊN HÒA NEW CITY LÀ DỰ ÁN THẾ NÀO
![]()
Biên Hòa New City là dự án khu đô thị mới do Công ty CP ĐT và KD Golf Long Thành làm chủ đầu tư và Hưng Thịnh Corp là đơn vị phát triển dự án, khu đô thị Biên Hòa New City không những sở hữu vị trí độc nhất vô nhị – liền kề sân Golf độc đáo mà còn được bao bộc bởi các nhánh sông Đồng Nai cho nên khí hậu quanh năm mát mẻ và rất trong lành.
Không phải chỉ ở Việt Nam thôi, mà trên thế giới cũng rất hiếm có dự án dân cư nào nằm tiếp giáp, thậm chí là trong cùng một khu vực sân Golf như dự án Biên Hòa New City Hưng Thịnh nếu có thì nơi đó cũng phải rất đắt đỏ, có giá vài triệu đô chứ không ít, và tại Việt Nam thì đây là dự án đầu tiên sở hữu được tiện ích độc đáo tuyệt vời này, và là dự án đất nền vùng ven gần TP HCM nhất, đáng để đầu tư nhất!
Ngoài ra khu đô thị New City Biên Hòa còn tiếp giáp với hàng loạt hệ thống thúc đẩy phát triển kinh tế quan trọng và trọng điểm tầm cơ khu vực phía Nam Việt Nam đó chính là:
- Sân bay Quốc Tế Long Thành,
- Sân bay Tân Sân Nhất,
- Hệ thống các tuyến Metro, cao tốc
- Các tuyến đường vành đai, cầu bắt qua Nguyễn Xiễn quận 9….
Các chi tiết này không những giúp thúc đẩy kinh tế tại khu vực phát triển mà còn giúp cho cả miền nam phát triển, đất nền nhà phố và biệt thự hứa hẹn sẽ là đích đến của nhiều nhà đầu tư tầm cỡ quốc tế trong 1 vài năm tới. Biên Hòa New City hấp dẫn với các nhà đầu tư đa nghành nghề.

BIÊN HÒA NEW CITY – ĐẶC QUYỀN VỊ TRÍ DỰ ÁN
![]()
Dự án đất nền sổ đỏ Bien Hoa New City có địa chỉ tại Phước Tân, Tam Phước, TP. Biên Hòa, Tỉnh Đồng Nai, nằm trong khuôn viên của Golf Long Thành. Hiện khu vực này đã xác nhập vào Thành Phố Biên Hòa.
Đất nền sổ đỏ Biên Hòa New City nằm ở cửa ngỏ phía Đông của Thành Phố Hồ Chí Minh, dự án được ví như là “hạt nhân” được bao bộc bởi các nền kinh tế trọng điểm của miền Nam như: TP Hồ Chí Minh, Bình Dương, Bà Rịa Vũng Tàu và các tỉnh miền Tây Nam Bộ, ngoài ra còn nằm giữa 2 trục đường chính và huyết mạch của khu vực đó chính là quốc lộ 51 và cao tốc Long Thành – TP Hồ Chí Minh, đây được coi là 2 hướng giao thông huyết mạnh của khu đông TP HCM.

Đường đi đến dự án Hưng Thịnh Biên Hòa New City từ TP HCM
Vào thời điểm hiện tại có 2 hướng để đi đến dự án Biên Hòa New City
Hướng thứ nhất đi Biên Hòa New City là đi xa lộ Hà Nội (Quốc lộ 1A), đến ngả 3 Vũng Tàu -> rẽ phải vào quốc lộ 51, đi cập theo quốc lộ 51 thì có 2 con đường vào dự án:
- Đường đầu tiên khách hàng gặp bên tay phải là đường Ngô Quyền, rẻ phải vào đường này (đi ngan dự án Long Hưng City) đến giao lộ với đường Hương Lộ 2 thì rẽ trái (Tại ngả 3 này trong tương lai sẽ là cầu Đồng Nai 2 bắt qua quận 9), sau khi rẻ vào Hương Lộ 2, chay 1 đoạn đến ngả 3 lớn giao với đường Nam Cao thì rẽ phải vào sân Golf Long Thành và đi vào
- Nếu không rẻ vào đường Ngô Quyền khách hàng có thể chạy tiếp theo quốc lộ 51 thêm 1 đoạn sẽ gặp ngả tư giao với đường Nam Cao, rẻ phải vào đường Nam Cao và chạy thẳng vào dự án
Hướng đi thứ 2 đi Biên Hòa New City là đi theo cao tốc Thành phố Hồ Chí Minh – Long Thành – Dầu Giây, tại vòng xuyến giao với quốc lộ 51 thì rẽ trái vào quốc lộ 51, chạy theo quốc lộ 51 đến đoạn giao với đường Nam Cao thì rẽ trái vào Nam Cao chạy thẳng vào dự án
Trong tương lai nếu cầu Đồng Nai 2 xây xong, khách hàng có thể đi đến bằng cầu Đồng Nai 2 xuyên qua quận 9 bắt đầu tư cầu Sài Gòn như sau: Cầu Sài Gòn -> xa lộ Hà Nội -> Lê Văn Việt -> Nguyễn Văn Tăng -> Nguyễn Xiển -> cầu Đồng Nai 2 -> Hương Lộ 2 -> Biên Hòa New City
Hoặc khi đường ven sông Đồng Nai (Hương lộ 2 nối dài) nối liền quốc lộ 51 – đường Ngô Quyền – Hương Lộ 2 với Cao tốc Thành phố Hồ Chí Minh – Long Thành – Dầu Giây thì quý khách đi đường cao tốc đến nút giao đường ven sông này rẽ trái -> rẽ phải vào Hương Lộ 2 ->Biên Hòa New City
Biên Hòa New City có lợi thế “Nhất cận thị”
Dự án khu đô thị Biên Hòa New City của Công Ty Golf Long Thành và Hưng Thịnh kết hợp thỏa mãn 3 yếu tố địa lý bật nhất trong bất động sản, là 3 nhân tố quan trọng giúp sự tăng trưởng kinh tế, văn hóa và tài chính của dự án, 3 nhân tố này cũng được các chuyên gia đầu tư bất động sản trên thế giới đặt biệt lưu tâm và lưu ý khi chia sẽ các kinh nghiệm đầu tư bất động sản của mình, chỉ cần đầu tư nơi nào thỏa 3 điều kiện này thì chắc chắn nắm trong tay 90% thắng lơi!
Từ Bien Hoa New City chúng ta có thể kết nối với các trung tâm kinh tế lớn trong khu vực một cách thuận lợi và nhanh chóng. Cụ thể là:
- Cách trung tâm TP.HCM khoảng 15km
- Cách trung tâm Biên Hòa 6km
- Cách sân bay quốc tế Long Thành 10km
- Cách khu công nghệ cao Quận 9 khoảng 8km
- Cách tuyến metro Bến thành – Biên Hòa khoàng 1.5km
- Cách KCN Biên Hòa 3km
- Cách ngã 3 Vũng tàu 2km
Hiện tại trên thị trường đất nền giá rẻ vùng ven thì không có dự án nào có vị trí đẹp và nhiều kết nối thuận tiện hơn dự án này!
Biên Hòa New City sở hữu yếu tố “Nhị cận giang”

Dự án Biên Hòa New City được sông Đồng Nai, sông Buông và các kênh sông lớn nhỏ trong nội khu bao quanh, thuận lợi kết nối kinh tế các vùng và phát triển hệ thống giao thông đường thủy, phát triển du llịch sinh thái sông, không khí nơi đây mát mẽ trong lành quanh năm, đem đến món quà vô giá là “sức khỏe” cho cư dân.
Vì được bao bộc bởi các con sông nên dự án an ninh và an toàn hơn cả các khu compound khác, chỉ có lối vào suy nhất là cổng sân Golf Long Thành được bảo vệ 24/24, thị trường đất nền Đồng Nai sẽ lại dấy lên cơn sốt trong thời gian sắp tới vì dự án quá đẹp này!
Biên Hòa New City sở hữu yếu tố “Tam cận lộ”
Biên Hòa New City Hưng Thịnh Nằm giữa 2 trục giao thông huyết mạch là Quốc lộ 1A và cao tốc Long Thành – TP.Hồ Chí Minh. Nằm ngay ven sông và gần cảng nước sâu Cái Mép,…là một trong những lợi thế vô cùng quan trọng. Trong nội khu dự án, lộ giới các con đường từ 13 m trở lên.
Mua nhà phố vùng ven thường khách hàng phài đi rất xa mới được giá tốt, tuy nhiên vấn đề về pháp lý là một điều rất e ngại và rất nguy hiểm với một số dự án của các chủ đầu tư không uy tín, riêng dự án đất nền tại sân Golf Long Thành do 2 tập đoàn lớn là Golf Long Thành và Hưng Thịnh thì các khách hàng sẽ hoàn toàn an tâm, và đặt biệt “sổ đỏ trao tay” chính là mấu chốt, dường như là rất hiếm trên thị trường hiện nay!

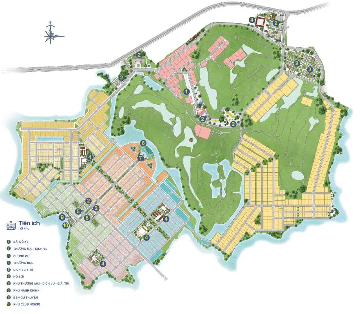
TIỆN ÍCH DỰ ÁN BIÊN HÒA NEW CITY
![]()
Bên cạnh thuận lợi về vị trí, một dự án muốn thu hút nhiều khách hàng quan tâm cần có các tiện ích nội khu đầy đủ và cao cấp, bởi lẽ nhu cầu về cuộc sống của người dân ngày càng được nâng cao, sở hữu một căn nhà hoàn chỉnh thôi chưa đủ, cần phải có nhiều tiện ích phục vụ cho nhu cầu đời sống hằng ngày, đời sống tinh thần của các cư dân.
Khu đô thị Biên Hòa New City không những có đầy đủ các tiện ích đó, mà còn được chủ đầu tư đặt biệt chú ý, các tiện ích góp phần tạo nên vẽ đẹp như trong tranh vẽ để phù hợp với cảnh quan cao cấp của sân Golf Long Thành, mà bạn cũng đã biết rồi, có sân golf nào trên thế giới nhìn vào mà không mê hồn đâu!
Biên Hòa New City có những tiện ích nội khu nào?
Các tiện ích nội khu bên trong dự án Biên Hòa New City gồm có:
- Trung tâm thương mại,
- Khu du lịch giải trí ven sông,
- Sân golf chuẩn quốc tế….
- Quảng trường Happy Square
- Bến du thuyền
- Hê thống công viên sinh thái xen kẽ bên trong dự án
- Biệt thự ven sông
- Đường dạo ven sông
- Hồ bơi trung tâm
- Khu vui chơi trẻ em
- Hồ bơi ngắm nhìn sân golf




Tiện ích ngoại khu Biên Hòa New City



Từ khu đô thị mới Biên Hòa của tập đoàn Hưng Thịnh di chuyển trong vòng bán kính 15 phút ta có thể bắt gặp các tiện ích sau:
- Từ NewCity Biên Hòa cách làng đại học quốc gia TP. HCM 15 phút
- Cách khu công nghệ cao quận 9 khoảng 18 phút di chuyển
- Cách khu du lịch suối tiên 15 phút
- Cách sân golf thủ Đức 15 phút
- cách bệnh viên Đại học Y Dược Shing Mark 7 phút
- Cách sân bay Quốc Tế Long Thành 10 phút
- Cách khu công nghiệp AMATA 10 phút
- Cách siêu thị Big C 10 phút
- Cách ngả 3 Vũng Tàu, cầu Động Nai quận 9 chỉ 10 phút
- Cách bệnh viên Ung Bướu 2 chỉ 15 phút
- Cách trường mầm non Hóa An 4 phút
- Cách trung tâm hành chính Đồng Nai mới 6 phút
- Cách bệnh viện ĐK Đồng Nai 9 phút
- Cách KCN Pouchen 5 phút
- Cách liền kề chợ Hóa An
- Cách trường tiểu học Hóa An vài phút
- Cách UBNN xã Hóa an vài phút
- Cách ga Metro 8 phút
- Cách bến xe miền đông mới 15 phút
- Liền kề sân Golf Long Thành
NHẬN BÁN LẠI BIÊN HÒA NEW CITY


- Cách tuyến Metro Biên Hoà-Bến Thành khoảng 1.5km
- Cách cảng hàng không quốc tế Long Thành khoảng 10 phút, dự án hứa hẹn sẽ trở thành sân bay lớn nhất, bận rộn nhất khu vực Châu Á-Thái Bình Dương trong tương lai gần.
- Cách tuyến Metro Biên Hoà-Bến Thành khoảng 1.5km
- Cách ngã ba Vũng Tàu 2km, mang đến những phút giây thư giãn cho gia đình khi chỉ cần di chuyển một khoảng cách ngắn là có thể tận hưởng không khí biển.

MẶT BẰNG DỰ ÁN BIÊN HÒA NEW CITY
![]()
MẶT BẰNG TỔNG THỂ

Mặt bằng Biên Hòa New City chia làm 2 khu riêng biệt.
Khu 1 Biên Hòa New City là khu biệt thự, nằm ở phía trên của bản đồ, trong khu 1 này lại được chia ra làm 2 khu là khu A (màu vàng) và khu B (màu nâu đỏ), diện tích các nền biệt thự trong khu 1 này từ 375m2 – 1.800m2 /lô.
Khu 2 Biên Hòa New City là khu nhà phố và biệt thự, trong khu 2 này được chia thành 5 khu vực khác nhau tương ứng với các màu sắc khác nhau bao gồm: Phú Gia, Vĩnh Quý, Khánh Thịnh, Mỹ An và Hưng Vượng.
Các loại nền nhà phố trong dự án đất nền Biên Hòa New City gồm
- 7×20 (140m2)
- 8×20 (160m2)
- 10×20 (200m2)
- 12×20 (240m2)
- …
Các loại nền biệt thự Biên Hòa New City
- 14×25 (350m2)
- 15×25 (375m2)
- …..
MẶT BẰNG KHU HƯNG VƯỢNG
Mặt bằng Biên Hòa New City khu Hưng Vượng
Mặt bằng khu Hưng Vượng có các tiện ích sau: Trường mầm non, Trường tiểu học
Bao quanh khu Hưng Vượng là sông nước và các nền biệt thự
Mặt bằng khu Hưng Vượng sở hữu các lợi thế như: Sở hữu trục chính đi vào dự án Biên Hòa New City, sở hữu trục shophouse thương mại, trục đường 24m, sở hữu 2 công viên, 3 hồ cảnh quan và 2 trường học. Khu Hưng Vượng sở dĩ được đặt tên như vậy là vì chủ đầu tư muốn gửi gắm những lời chúc tốt đẹp, là một biểu tượng của sự giàu sang và phú quý, khởi nguồn cho một cuộc sống đủ đầy, sung túc dành cho các cư dân sinh sống tại đây.
[toggle title=”Thông tin chi tiết mặt bằng khu Hưng Vượng” state=”close”]Khu Hưng Vượng nằm ở phía Tây Bắc khu đô thị mới sân Golf Long Thành Biên Hòa Đồng Nai, tiện ích gồm có: Trường mầm non, trường tiểu học, công viên, hồ cảnh quan, lộ giới đường nội khu từ: 12, 13, 15, 18, 24m
Khu Hưng Vượng Biên Hòa New City được chia làm 3 khu nhỏ:
- Hưng Vượng 1
- Hưng Vượng 2
- Hưng Vượng 3
- Tổng: 805 nền
- Nhà phố: 729 nền
- Biệt thự: 76 nền
Các loại diện tích quy mô khu Hưng Vượng 1
- Tổng: 320 nền
- Nhà phố: 272 nền
- Biệt thự: 48 nền
- HV1-1 có tổng cộng 22 nền biệt thự diện tích 12×20 = 240m2
- HV1-2, HV1-3 mỗi khu có tổng cộng 48 nền nhà phố diện tích 5×20 = 100m2
- HV1-4 có tổng cộng 16 nền biệt thự diện tích 12×22 = 264m2
- HV1-5 có tổng cộng 10 nền biệt thự diện tích 12×22 = 264m2
- HV1-6 có tổng cộng 28 nền nhà phố diện tích 5×20 = 100m2
- HV1-7 có tổng cộng 32 nền nhà phố diện tích 5×20 = 100m2
- HV1-8, HV1-11 mỗi khu có tổng cộng 26 nền nhà phố diện tích 5×20 = 100m2
- HV1-9, HV1-10 mỗi khu có tổng cộng 32 nền nhà phố diện tích 5×20 = 100m2
Các loại diện tích khu Hưng Vượng 2
- Tổng: 294 nền
- Nhà phố: 294 nền
- Biệt thự: 0 nền
- HV2-1 có tổng cộng 44 nền nhà phố diện tích 5×20 = 100m2
- HV2-2 có tổng cộng 30 nền nhà phố diện tích 5×20 = 100m2
- HV2-3, HV2-4, HV2-5 mỗi khu có tổng cộng 42 nền nhà phố diện tích 5×20 = 100m2
- HV2-6 có tổng cộng 32 nền nhà phố diện tích 5×20 = 100m2
- HV2-7 có tổng cộng 30 nền nhà phố diện tích 5×20 = 100m2
- HV2-8 có tổng cộng 17 nền nhà phố diện tích 5×20 = 100m2
- HV2-9 có tổng cộng 36 nền nhà phố diện tích 5×20 = 100m2
- HV2-10 có tổng cộng 9 nền nhà phố diện tích 5×20 = 100m2
Các loại diện tích khu Hưng Vượng 3
- Tổng: 191 nền
- Nhà phố: 163 nền
- Biệt thự: 28 nền
- HV3-1 có tổng cộng 32 nền nhà phố diện tích 5×20 = 100m2
- HV3-2, HV3-4, HV3-6 mỗi khu có tổng cộng 25 nền nhà phố diện tích 5×20 = 100m2
- HV3-3, HV3-5 mỗi khu có tổng cộng 28 nền nhà phố diện tích 5×20 = 100m2
- HV3-7 có tổng cộng 12 nền biệt thự diện tích 12×20 = 240m2
- HV3-8 có tổng cộng 10 nền biệt thự diện tích 12×20 = 240m2
- HV3-9 có tổng cộng 6 nền biệt thự diện tích 12×24 = 288m2
Bảng giá đất nền khu Hưng Vượng Biên Hòa New City

MẶT BẰNG KHU KHANG THỊNH

Mặt bằng khu Khang ThịnH sở hữu nhiều tiện ích như: Bến du thuyền, khu club house, hồ bơi, khu ý tế, khu hành chính và khu trung tâm thương mại, đây là khu vực duy nhất của dự án sở hữu bến du thuyền,…
Khu Khang Thịnh cũng nối tiếp với khu Hưng Vượng sở hữu trục đường thương mại 24m, đồng thời cũng tiếp giáp phía trên là khu Phú Gia, khu tâm tâm sầm uất nhất.
[toggle title=”Thông tin chi tiết mặt bằng khu Khang Thịnh” state=”close”]Khu Khang Thịnh nằm ở phía Tây Nam khu đô thị Biên Hòa New City Hưng Thịnh, với 2 mặt View sông và các tiện ích như:
- Bến du thuyền
- Khu Club house
- Hồ bơi
- Khu y tế
- Khu dịch vụ hành chính
- Khu thương mại dịch vụ
- Công viên
Khu Khang Thịnh Biên Hòa New City được chia làm 3 khu nhỏ:
- Khanh Thịnh 1 (KT1)
- Khanh Thịnh 2 (KT2)
- Khanh Thịnh 3 (KT3)
- Tổng: 679 nền
- Nhà phố: 629 nền
- Biệt thự: 50 nền
Đường nội khu khu Khang Thịnh từ: 12, 13, 15, 18, 24m
Các loại diện tích đất nền trong khu Khang Thịnh 1
- Tổng: 377 nền
- Nhà phố: 377 nền
- Biệt thự: 0 nền
- KT1-1 có tổng cộng 5 nền nhà phố diện tích 5×20 = 100m2
- KT1-2, KT1-3 mỗi khu có tổng cộng 25 nền diện tích 5×20 = 100m2
- KT1-4 có tổng cộng 50 nền nhà phố diện tích 5×20 = 100m2
- KT1-5 có tổng cộng 35 nền nhà phố diện tích 5×20 = 100m2
- KT1-6 có tổng cộng 31 nền nhà phố diện tích 5×20 = 100m2
- KT1-7 có tổng cộng 36 nền nhà phố diện tích 5×20 = 100m2
- KT1-8 có tổng cộng 40 nền nhà phố diện tích 5×20 = 100m2
- KT1-9 có tổng cộng 39 nền nhà phố diện tích 5×20 = 100m2
- KT1-10 có tổng cộng 31 nền nhà phố diện tích 5×20 = 100m2
- KT1-11 có tổng cộng 50 nền nhà phố diện tích 5×20 = 100m2
Các loại diện tích đất nền trong khu Khang Thịnh 2
- Tổng: 118 nền
- Nhà phố: 105 nền
- Biệt thự: 13 nền
- KT2-1, KT2-3 mỗi khu có tổng cộng 25 nền nhà phố diện tích 5×20 = 100m2
- KT2-2 có tổng cộng 33 nền nhà phố diện tích 5×20 = 100m2
- KT2-4 có tổng cộng 22 nền nhà phố diện tích 5×20 = 100m2
- KT2-5 có tổng cộng 9 nền biệt thự diện tích 15×20 = 300m2
- KT2-6 có tổng cộng 4 nền biệt thự diện tích 17×20 = 340m2
Các loại diện tích đất nền trong khu Khang Thịnh 3
- Tổng: 184 nền
- Nhà phố: 147 nền
- Biệt thự: 37 nền
- KT3-1 có tổng cộng 42 nền nhà phố diện tích 5×20 = 100m2
- KT3-2 có tổng cộng 33 nền nhà phố diện tích 5×20 = 100m2
- KT3-3 có tổng cộng 40 nền nhà phố diện tích 5×20 = 100m2
- KT3-4, KT3-6 có tổng cộng 32 nền nhà phố diện tích 5×20 = 100m2
- KT3-5 có tổng cộng 13 nền biệt thự diện tích 12×20 = 240m2
- KT3-7 có tổng cộng 5 nền biệt thự diện tích 17×20 = 340m2
- KT3-8 có tổng cộng 14 nền nhà phố diện tích 12×20 = 240m2
- KT3-9 có tổng cộng 5 nền biệt thự diện tích 14×25 = 350m2
Bảng giá đất nền khu Khang Thịnh Biên Hòa New City

MẶT BẰNG KHU MỸ AN

Mặt bằng khu Mỹ An:
Mặt bằng khu Mỹ An sở hữu ít lô và là khu có diện tích nhỏ nhất của dự án
Khu Mỹ An sở hữu sự yên tĩnh, có các lô biệt thự ven sông và sở hữu 1 trường mầm non cùng công viên lớn.
[toggle title=”Thông tin chi tiết mặt bằng khu Mỹ An” state=”close”]Khu Mỹ An nằm hướng Bắc dự án đất nền sân Golf, với 3 mặt giáp sông và tiện ích trường mâm non nằm torng khu vực này
Khu Mỹ An Biên Hòa New City được chia ra làm 2 khu nhỏ:
- Mỹ An 1 (MA1)
- Mỹ An 2 (MA2)
- Tổng: 475 nền
- Nhà phố: 436 nền
- Biệt thự: 39 nền
Đường nội bộ khu Mỹ An có lộ giới từ: 12, 13, 15, 18, 24m
Các loại diện tích đất nền trong khu Mỹ An 1
- Tổng: 249 nền
- Nhà phố: 241 nền
- Biệt thự: 8 nền
- MA1-1 có tổng cộng 32 nền nhà phố diện tích 5×18,5 = 92,5m2
- MA1-2 có tổng cộng 34 nền nhà phố diện tích 5×18,5 = 92,5m2
- MA1-3 có tổng cộng 30 nền nhà phố diện tích 5×18 = 90m2
- MA1-4 có tổng cộng 32 nền nhà phố diện tích 5×18 = 90m2
- MA1-5 có tổng cộng 30 nền nhà phố diện tích 5×19 = 95m2
- MA1-6 có tổng cộng 33 nền nhà phố diện tích 5×19 = 95m2
- MA1-7 có tổng cộng 50 nền nhà phố diện tích 5×20 = 100m2
- MA1-8 có tổng cộng 8 nền biệt thự diện tích 13,5×24 = 324m2
Các loại diện tích đất nền trong khu Mỹ An 2
- Tổng: 226 nền
- Nhà phố: 195 nền
- Biệt thự: 31 nền
- MA2-1 có tổng cộng 35 nền nhà phố diện tích 5×20 = 100m2
- MA2-2 có tổng cộng 33 nền nhà phố diện tích 5×20 = 100m2
- MA2-3, MA2-4 mỗi khu có tổng cộng 34 nền nhà phố diện tích 5×20 = 100m2
- MA2-5 có tổng cộng 5 nền biệt thự diện tích 19×33 = 627m2
- MA2-6 có tổng cộng 25 nền nhà phố diện tích 5×20 = 100m2
- MA2-7 có tổng cộng 34 nền nhà phố diện tích 5×20 = 100m2
- MA2-8 có tổng cộng 6 nền diện biệt thự tích 14×20 = 280m2
- MA2-9 có tổng cộng 12 nền biệt thự diện tích 15×20 = 300m2
- MA2-10 có tổng cộng 6 nền biệt thự diện tích 14×20 = 280m2
- MA2-11 có tổng cộng 2 nền biệt thự diện tích 22,5×32 = 720m2
Bảng giá đất nền khu Mỹ An Biên Hòa New City

MẶT BẰNG KHU PHÚ GIA

- Mặt bằng khu Phú Gia sở hữu nhiều tiện ích cao cấp nhất dự án, là trái tim, là khu tâm tâm sầm uất nhất của dự án Biên Hòa New City
- Khu Phú Gia sở hữu tầm nhìn trực diện với sân Golf Long Thành, sở hữu khu trung tâm giải trí, hồ bơi lớn, tầm nhìn bao quát sân Golf
- Sở hữu trục đường thương mại 24m
- Sở hữu trục đường chính 30m nối với khu trung tâm giải trí thương mại.
- Khu Phú Gia là khu trung tâm có giá trị nhất của dự án BHNC.
Khu Phú Gia chính là khu trung tâm của dự án Biên Hòa New City, khu Phú Gia được chia làm 3 khu vực chính
- Phú Gia 1 (PG1)
- Phú Gia 2 (PG2)
- Phú Gia 3 (PG3)
- Tổng: 806 nền
- Nhà phố: 645 nền
- Biệt thự: 161 nền
Tại đây là trung tâm đầu nảo của dự án với tiện ích hồ bơi view sân Golf Long Thành, view sông và khu thương mại dịch vụ giải trí, đường nội khu: 10, 13, 15, 17, 24, 30m
Các loại diện tích khu Phú Gia 1 Biên Hòa New City
- Tổng: 137 nền
- Nhà phố: 52 nền
- Biệt thự: 85 nền
- PG1-1, PG1-4 mỗi khu có tổng cộng 5 nền biệt thự diện tích 19,69×20 = 393,8m2
- PG1-2, PG1-3 mỗi khu có tổng cộng 5 nền biệt thự diện tích 15×20 = 300m2
- PG1-5 có tổng cộng 5 nền biệt thự diện tích 22×40 = 880m2
- PG1-6, PG1-7 mỗi khu có tổng cộng 18 nền biệt thự diện tích 15×20 = 300m2
- PG1-8, PG1-11 mỗi khu có tổng cộng 12 nền biệt thự diện tích 12×20 = 240m2
- PG1-9, PG1-10 mỗi khu có tổng cộng 26 nền nhà phố diện tích 6×20 = 120m2
Các loại diện tích khu Phú Gia 2 Biên Hòa New City
- Tổng: 324 nền
- Nhà phố: 300 nền
- Biệt thự: 24 nền
- PG2-1, PG2-5 mỗi khu có tổng cộng 12 nền biệt thự diện tích 12×20 = 240m2
- PG2-2, PG2-6 mỗi khu có tổng cộng 40 nền nhà phố diện tích 6×20 = 120m2
- PG2-3, PG2-4, PG2-7, PG2-8 mỗi khu có tổng cộng 39 nền nhà phố diện tích 6×18 = 108m2
- PG2-9 mỗi khu có tổng cộng 33 nền nhà phố diện tích 5×20 = 100m2
- Pg2-10 mỗi khu có tổng cộng 31 nền nhà phố diện tích 5×20 = 100m2
Các loại diện tích khu Phú Gia 3 Biên Hòa New City
- Tổng: 345 nền
- Nhà phố: 293 nền
- Biệt thự: 52 nền
- PG3-1, PG3-2, PG3-6, PG3-7 mỗi khu có tổng cộng 39 nền nhà phố diện tích 6×18 = 108m2
- PG3-3, PG3-8 mỗi khu có tổng cộng 31 nền nhà phố diện tích 6×20 = 120m2
- PG3-4, PG3-9, PG3-10 mỗi khu có tổng cộng 12 nền biệt thự diện tích 12×20 = 240m2
- PG3-5 có tổng cộng 16 nền biệt thự diện tích 12×20 = 240m2
- PG3-11 có tổng cộng 31 nền nhà phố diện tích 5×20 = 100m2
- Pg3-12 có tổng cộng 44 nền nhà phố diện tích 5×20 = 100m2
Bảng giá đất nền khu Phú Gia Biên Hòa New City

MẶT BẰNG KHU VĨNH QUÝ

- Mặt bằng khu Vĩnh Quý tiếp giáp với khu Phú Gia và Mỹ An
- Khu Vĩnh Quý cũng sở hữu trục đường thương mại 24m
- Khu Vĩnh Quý tuy diện tích nhỏ nhưng sở hữu đến 3 tiện ích công công lớn là trường từ mầm non, tiểu học đến trung học cơ sở
- Khu Vĩnh Quý sở hữu 1 mặt là các biệt thự nhìn trọn sân Golf.
Khu Vĩnh Quý nằm ở phía Đông Nam dự án đất nền được chia làm 2 khu là
- Vĩnh Quý 1 (VQ1)
- Vĩnh Quý 2 (VQ2)
- Tổng: 714 nền
- Nhà phố: 632 nền
- Biệt thự: 82 nền
Khu Vĩnh Quý Biên Hòa New City có các tiện ích như:
- 2 mặt view sông, view sân Golf
- Trường mầm non
- Trường Tiểu học
- Trường Trung Học cơ sở
- Công Viên cây xanh
- Đường nội khu: 12, 13, 15, 18 và 24m
Các loại diện tích khu Vĩnh Quý 1
- Tổng: 367 nền
- Nhà phố: 332 nền
- Biệt thự: 35 nền
- VQ1-1 có tổng cộng 7 nền biệt thự diện tích 15×25 = 375m2
- VQ1-2, VQ1-3 mỗi khu có tổng cộng 14 nền biệt thự diện tích 12×20 = 240m2
- VQ1-4, VQ1-5 mỗi khu có tổng cộng 34 nền nhà phố diện tích 5×20 = 100m2
- VQ1-6, VQ1-7, VQ1-8, VQ1-9 mỗi khu có tổng cộng 49 nền nhà phố diện tích 5×20 = 100m2
- VQ1-10 có tổng cộng 32 nền nhà phố diện tích 5×20 = 100m2
- VQ1-11 có tổng cộng 34 nền nhà phố diện tích 5×20 = 100m2
Các loại diện tích khu Vĩnh Quý 2
- Tổng: 347 nền
- Nhà phố: 300 nền
- Biệt thự: 47 nền
- VQ2-1 có tổng cộng 18 nền biệt thự diện tích 12×20 = 240m2
- VQ2-2 có tổng cộng 4 nền biệt thự diện tích 15×25 = 375m2
- VQ2-3 có tổng cộng 7 nền biệt thự diện tích 12×25 = 300m2
- VQ2-4, VQ2-5, VQ2-6, VQ2-7, VQ2-8, VQ2-9, VQ2-10 mỗi khu có tổng cộng 44 nền nhà phố diện tích 5×20 = 100m2
- VQ2-11 có tổng cộng 18 nền biệt thự diện tích 15×30 = 450m2
Bảng giá đất nền khu Vĩnh Quý Biên Hòa New City

MẶT BẰNG KHU KHU 1

Mặt bằng Biên Hòa New City giai đoạn 2 – KHU 1

BIÊN HÒA NEW CITY CÓ TIẾN ĐỘ THANH TOÁN ƯU ĐÃI
![]()


Lưu ý: Trên đây là phương thức thanh toán chính thức của dự án đất nền Biên Hòa New City Hưng Thịnh, khách hàng thanh toán vượt tiến độ sẽ được chiết khấu với lãi suất tương đương 15%/năm/số ngày vượt, khách hàng vui lòng liên hệ Hotline: 0938 169 445 để cung cấp bảng tính chiết khấu vượt tiến độ và các thông tin chi tiết.

BIÊN HÒA NEW CITY CÓ ĐẢNG ĐỂ BẠN SỞ HỮU KHÔNG
![]()
Lý do thứ nhất là uy tín và thành công của chủ đầu tư Hưng Thịnh.
Công ty CP Đầu tư và Kinh doanh Golf Long Thành chủ đầu tư Biên Hòa New City là một tập đoàn lớn chuyên lĩnh vực đầu tư sân golf và bất động sản trong cả nước, và khu vực đông nam Á, sân golf Long Thành được bình chọn là sân Golf lớn tốt nhất Việt Nam và là một trong những sân Golf đẹp nhất Châu Á.
Tập đoàn Hưng Thịnh Corp hiện đang trong top 10 nhà phát triển bất động sản lớn nhất Việt Nam
Đặc biệt trong lĩnh vực bất động sản là đất nền, chắc ai biết đến Hưng Thịnh cũng đã từng nghe qua các dự án thành công ngoài mong đợi trong lĩnh vực đất nền của tập đoàn này, điển hình như:
Dự án đất nền Golden Bay tại Bãi Dài Cam Ranh hơn 79ha, hiện nay đã tăng giá gấp 5-6 thậm chí gấp 10 lần so với lúc mở bán
Dự án Golden Bay 602 hơn 2.000 nên vừa mở bán trong quý 1 cũng đã bán hết chỉ trong 1 tuần và bán lại chênh lệch 300-600 triệu/nền sau đó chỉ 1 tháng
Dự án Sentosa Villa tại Mũi Né – Phan Thiết cũng đã tăng giá gấp 2-3 lần lúc mở bán
Gần đây nhất là dự án đất nền biệt thự Saigon Mystery Villas tại Thạnh Mỹ Lợi quận 2, sau khi mở bán 3-4 tháng thì giá đất khu này đã tăng lên từ 10-20 triệu/m2, đem lại lợi nhuận hàng tỷ đồng/1 sản phẩm cho các khách hàng đầu tư ban đầu
Với những thành công như trên thì khách hàng đừng ngại ngần khi đầu tư các sản phẩm đất nền của Hưng Thịnh, Biên Hòa New City dự kiến sẽ là 1 “Golden Bay” mới nữa của Hưng Thịnh tại thành phố Biên Hòa, một dự án đất nền sổ đỏ vùng ven tốt nhất Biên Hòa – Đồng Nai, đừng chần chừ và đừng để phải nói “giá như” như các khách hàng của các dự án trước đây của Hưng Thịnh
Lý do thứ 2 là vị trí nằm trong khuôn viên sân Golf là vị trí có 1 không 2!
Hiện nay không phải chỉ ở Việt Nam, mà cả trên thế giới ít có dự án đất nền nào liền kề sân Golf như Biên Hòa New City mà giá dưới vài triệu đô hết, vì Golf là môn thể thao xa xỉ của nhà giàu, đất khu vực đó cũng toàn giành cho nhà giàu
Sân Golf Long Thành không chỉ là sân Golf lớn và đẹp nhất nhì Việt Nam, mà còn là 1 sân Golf đẹp và tầm cỡ Đông Nam Á, thu hút rất nhiều golf thủ trong khu vực về đây tham gia
Còn có 1 sân golf nữa các dự án khoảng 10-15 phút di chuyển đó chính là sân Golf Thủ Đức
Lý do thứ 3 là Biên Hòa New City kết nối nhiều tuyến giao thông lớn
Từ khu đô thị Biên Hòa New City, cư dân có thể dễ dàng di chuyển và kết nối đến các khu vực trọng điểm khác bằng nhiều loại phương tiện và nhiều hướng khác nhau như: đường sông, quốc lộ 51, tuyến Metro Biên Hòa-Đồng Nai, tuyến Metro TP HCM – Long Thành, cao tốc Long Thành – Dầu Giây, ngả 3 Vũng Tàu,…
Về Sau còn có khả năng phát triển cả tuyến đường thủy, du lịch sinh thái sông,…
Từ khu đô thị New City Biên Hòa di chuyển đến trung tâm thành phố Biên Hòa chỉ 15 phút thông qua 2 tuyến đường là: Quốc lộ 51 -> quốc lộ 15 hoặc Quốc lộ 51 -> DT11 -> cầu An Hảo -> Đặng Văn Trơn
Lý do thứ 4 là hạ tầng nội khu đã hoàn thiện cơ bản
Hạ tầng nội khu nơi đây hiện đã hoàn thiện cơ bản, các tuyến đường chính đã trải nhựa, các tuyến đường còn lại sẽ cũng được hoàn thành chỉ trong thời gian ngắn
Lý do thứ 5 là tiện ích nội khu cao cấp
Dự án Biên Hòa New City dành phần lớn diện tích để làm các tiện ích nội khu và cảnh quan cây xanh cho cư dân, các khu trung tâm thương mại, hồ bơi, hồ cảnh quang, đường dạo ven sông, bến du thuyền, vườn BBQ, nhà trẻ, trường học quốc tế, dịch vụ chăm sóc y tế, sức khỏa, khu thể thao, sân chơi trẻ em…
Lý do thứ 6 là tiến độ thanh toán hợp lý
Tiến độ thanh toán Biên Hòa New City dài hạn, không lãi suất, ký hợp đồng chỉ từ 40%, hiếm có dự án đất nền nào đã có hạ tầng hoàn thiện hơn 60%, cấp sổ đỏ, bán đất nền nhà phố trong sân golf mà thanh toán làm nhiều đợt như vậy
Lý do thứ 7 là chính sách bán hàng và chương trình khuyến mãi hấp dẫn
Chính sách bán hàng chính thức Biên Hòa New City chỉ được công bố trong ngày mở bán, tuy nhiên dự kiến sẽ có rất nhiều khuyến mãi hấp dẫn như: chương trình chiết khấu, tặng phiếu rút thăm iphone/ipad, tặng phiếu mua hàng, tặng voucher xây nhà lên đến hàng trăm triệu
Lý do thứ 8 đó chính là tiềm năng phát triển trong tương lai và khả năng sinh lời cùng tính thanh khoản cao
Đầu tư đất nền không bao giờ là sai cả, đặt biệt là đất nền tại khu vực cực kỳ trắc địa và được phát triển bởi một tập đoàn lớn và nhiều kinh nghiệm như Hưng Thịnh Corp
Dân số thì ngày càng đông, các căn hộ có thể mọc lên nhiều nhưng đất nền thì không!
Điểm đặc biệt nhất của dự án chính là chờ đợi cầu quận 9 -Nhơn Trạch hoàn thành, hiện nay cầu này chỉ trong quá trình đề suất thi công, nếu nhu cầu này hoàn thành thì cư dân di chuyển đến quận 9 chỉ trong vài phút
Khi cầu quận 9 – Nhơn trạch hoàn thành thì giá đất Biên Hòa New City Hưng Thịnh sẽ gia tăng rất nhanh, nếu khách hàng không chọn mua ngay từ bây giờ thì cơ hội sẽ không còn đến lần thứ 2 nữa (giống như trước đây dự án Saigon Mystery quận 2, sau khi cầu bắt qua đảo kim cương hoàn thành và kết nối trực tiếp với dự án, thì giá đất Saigon Mystery Villas đã tăng lên 10-20 triệu/m2)
Lý do thứ 9 là dự án Biên Hòa New City có quá nhiều “cái chưa” để cho chúng ta chờ đợi
“Cái chưa” ở đây là gì? Tại sao những “cái chưa” này lại là ưu điểm? Tại sao chúng ta phải chờ đợi những cái chưa này?
“Cái chưa” ở đây chính là quý khách hàng mua đất khi dự án vẫn chưa hoàn thiện cơ sở hạ tầng, và khi cơ sở hạ tầng hoàn thiện -> sẽ là 1 đợt tăng giá.
“Cái chưa” là dân cư tụ tập về đây vẫn chưa nhiều, sau khi cơ sở hạ tầng kết nối, công với chính sách giản dân của thành phố và việc di chuyển trở nên dễ dàng hơn thì lại thêm 1 cơ hội tăng giá đất tại đây.
“Cái chưa” nữa là sân bay Long Thành vẫn chưa hoàn thiện, sau khi sân bay quốc tế Long Thành hoàn thiện -> lại là 1 lần tăng giá khủng cho Biên Hòa New City.
“Cái chưa” đặt biệt quan trọng và đáng chờ đợi nhất chính là cầu Đồng Nai 2 bắt qua đường Nguyễn Xiển quận chính, thì chỉ các quận 9 chỉ 1 con sông, giá đất bên kia sông hiện nay đã là 40-50tr/m2, thì sau khi xây xong cây cầu này, giá đất New City Biên Hòa sẽ tăng lên 20-30 triệu/m2 là việc rất bình thường -> cái chưa này là 1 đợt tăng giá đáng chờ đợi.
Ngoài ra, còn rất nhiều cái chưa khác, đồng nghĩa với rất nhiều đợt tăng giá khác mà khách hàng đầu tư BHNC đáng để chờ đợi như: Đường Hương Lộ 2, đường vành đai 3, đường Ngô Quyền nối dài,…
Một dự án nếu như không có “cái chưa” nào để chờ đợi thì 1 là dự án đó không có tiềm năng phát triển trong tương lai, 2 là dự án đó đã phát triển đến đỉnh điểm, dĩ nhiên là giá cả sẽ cao ngất ngưỡng thì những dự án này là ko đáng đầu tư, vì khả năng và tỷ suất sinh lời sẽ không còn cao nữa.
KẾT LUẬN DỰ ÁN BIÊN HÒA NEW CITY RẤT ĐÁNG ĐỂ ĐẦU TƯ!
Với những lợi thế về vị trí, Biên Hòa New City đang thu hút lượng lớn nhà đầu tư cũng như các hộ gia đình có tầm nhìn kinh tế chiến lược trong tương lai. Nếu bạn biết tận dụng những lợi thế vốn có của dự án, nơi đây không những cung cấp cho bạn một gia đình mà còn cung cấp cho bạn cả sự nghiệp về sau.

HỎI ĐÁP DỰ ÁN ĐẤT NỀN BIÊN HÒA NEW CITY
![]()
Chủ đầu tư dự án là Công ty cổ phần Golf Long Thành
Phát triển dự án là Hưng Thịnh Land
Độc quyền phân phối là Công ty cổ phần Property X
Khách hàng đặt chỗ chuyển khoản vào đúng tài khoản của PropertyX (sẽ được hoàn lại nếu không mua)
Khách hàng chuyển khoản ký hợp đồng tùy theo từng khu vực (hợp đồng 2 bên hoặc 3 bên) mà có số tài khoản cụ thể riêng biệt, khách hàng vui lòng liên hệ với nhân viên kinh doanh PropertyX để được cung cấp số tài khoản chính xác, tránh trường hợp chuyển tiền nhằm tài khoản, hoặc gọi vào Hotlien sau: 0938 169 445
Tổng diện tích dự án: hơn 119 hecta
Địa chỉ dự án: Phước Tân – Tam Phước, TP.Biên Hòa, Tỉnh Đồng Nai
Vị trí: Nằm trong Tổng thể dự án Khu đô thị, sân golf, thể thao và du lịch sinh thái Long Thành với quy mô 334 ha
Loại hình: Biệt thự, nhà liên kế
Tất cả các nền mớ bán trước đây của chủ đầu tư hiện đã nhận sổ đỏ 100%
Các nền mới mở bán khu 1 và 1 phần các khu cũ sẽ được thanh toán theo tiến độ trong 6 tháng, sau khi thanh toán hết 100% tiền, chủ đầu tư sẽ tiến hành sang tên công chứng cho khách hàng để ra sổ mới (dự kiến thời gian ra sổ mới từ 3-6 tháng)
Dự án Biên Hòa New City là dự án có pháp lý cao nhất, đầy đủ nhất so với tất cả các dự án trong khu vực
Dự án duy nhất khách hàng được cấp luôn sổ đỏ từng nền 100-1.000m2 mà không bắt buộc phải xây nhà
Hình thức sở hữu là sổ đỏ vĩnh viễn
Hình thức sử dụng là đất thổ cư 100%
Tại Việt Nam, sổ đỏ là tính pháp lý cao nhất đối với sản phẩm là đất nền
Khách hàng mua đất nền dự án Biên Hòa New City nếu vẫn chưa thanh toán hết, chưa nhận sổ thì sẽ được sang nhượng trực tiếp tại đơn vị phát triển dự án Hưng Thịnh, chủ đầu tư Golf Long Thành, phí sang nhượng là 1%
Khách hàng mua đất nền dự án Biên Hòa New City nếu đã nhận sổ đỏ thì sẽ tiến hành sang tên công chứng như nhà lẽ, đất thổ cư bình thường, không thông qua chủ đầu tư, khách hàng tốn phí công chứng, thuê thu nhập cá nhân theo quy định của nhà nước, thủ tục sang tên công chứng nhanh gọn trong ngày.
Giá bán lại Biên Hòa NEw City rất đa dạng, tuy theo từng khu vực và nhu cầu mua bán lại của khách hàng
Hiện nay giá bán lại thấp nhất rơi vào khu Mỹ An giá tầm 15 triệu/m2
Các khu khác giá từ 18-28 triệu/m2
Giá bán mới của chủ đầu tư là các nền mặt tiền đường lớn giá từ 24 triệu/m2
Giá bán mới chủ đầu tư các nền Biệt Thự (500m2 trở lên) từ 13-15 triệu/m2

HÌNH ẢNH THỰC TẾ DỰ ÁN BIÊN HÒA NEW CITY
![]()















Xem thêm: Tiến độ xây dựng Biên Hòa New City mới nhất
CHỦ ĐẦU TƯ DỰ ÁN BIÊN HÒA NEW CITY
![]()

- Chủ đầu tư dự án là Công ty cổ phần Golf Long Thành
- Phát triển dự án là Hưng Thịnh Land
- Độc quyền phân phối là Công ty cổ phần Property X
- Khách hàng đặt chỗ chuyển khoản vào đúng tài khoản của PropertyX (sẽ được hoàn lại nếu không mua)
- Khách hàng chuyển khoản ký hợp đồng tùy theo từng khu vực (hợp đồng 2 bên hoặc 3 bên) mà có số tài khoản cụ thể riêng biệt, khách hàng vui lòng liên hệ với nhân viên kinh doanh PropertyX để được cung cấp số tài khoản chính xác, tránh trường hợp chuyển tiền nhằm tài khoản, hoặc gọi vào Hotlien sau: 0938 169 445
Xem thêm:
- Thông tin dự án Biên Hòa New City
- Tiến độ xây dựng dự án Biên Hòa New City
- Giỏ hàng bảng giá chuyển nhượng Biên Hòa New City mới nhất
DỰ TOÁN LÃI SUẤT VAY NGÂN HÀNG
![]()
DOWNLOAD BẢNG GIÁ FULL
[makm]ĐĂNG KÝ NHẬN BẢNG GIÁ
![]()





